COMING SOON
1161 Hyde Park Dr. North Tustin, CA 92705
Offered at $1,599,999
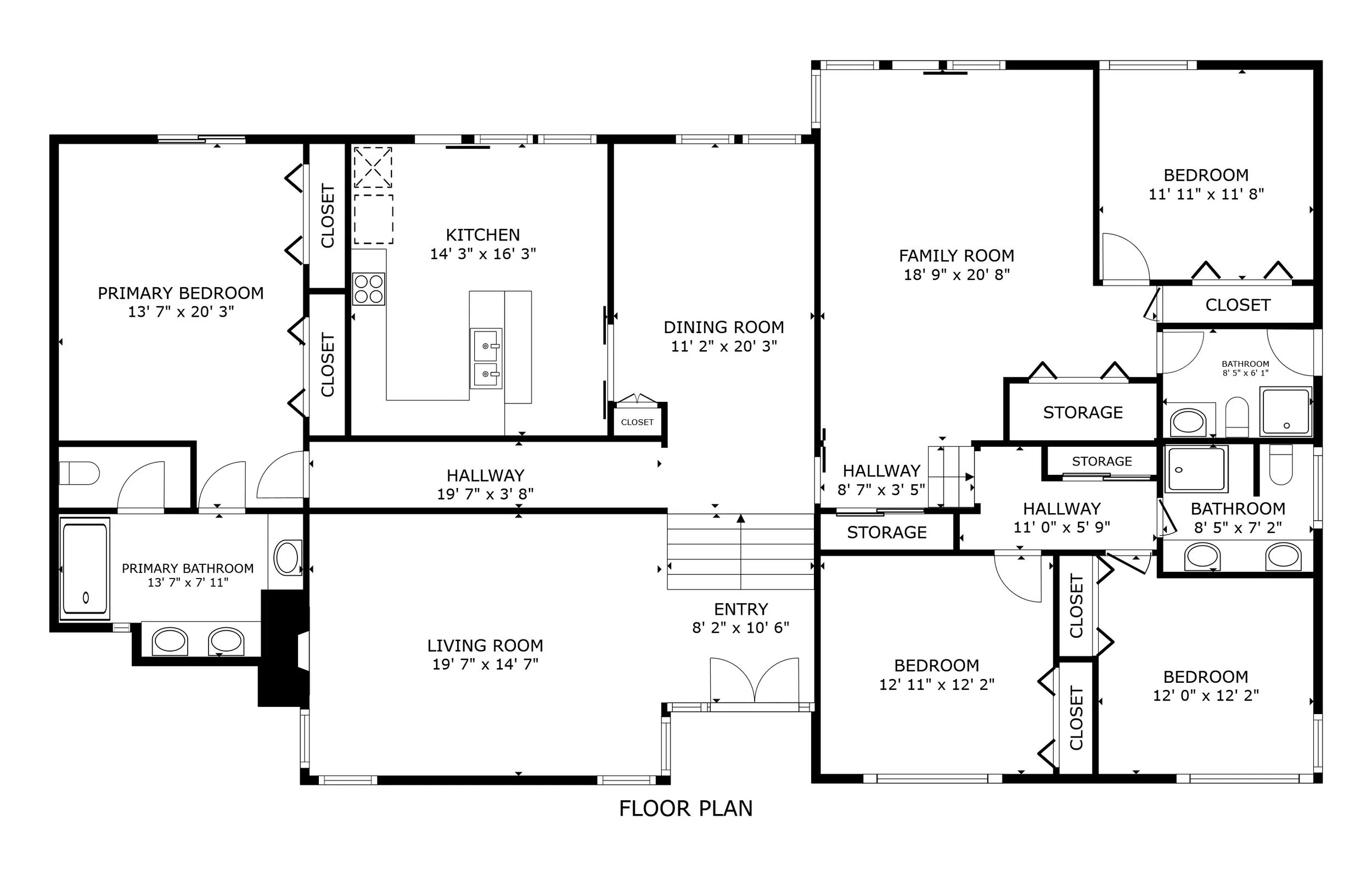
4 Bedroom - 3 Bath - 2,472 SF Home
PRIVATE POOL* 3 CAR GARAGE* PEEKABOO VIEWS * This true gem is located on a renowned tree-lined street in the coveted North Tustin neighborhood, this charming Hyde Park home seamlessly blends comfort, style, and convenience. With 4 spacious bedrooms and 3 well-appointed bathrooms, this unique floor plan offers plenty of versatility for buyers. The open layout includes two inviting living spaces: a relaxed family room ideal for kids’ playtime or casual gatherings, and an elegant formal living room perfect for hosting guests. Venture outdoors to your private oasis, featuring a sparkling pool for endless summer fun, a lush backyard for al fresco dining and relaxation, and ample privacy for unwinding. The generous 3-car garage offers abundant storage and parking. Ideally situated near top-rated schools like Arroyo Elementary, scenic parks, and convenient freeway access, this residence captures the essence of Southern California living at its best.
GALLERY
